四平加利利“东方明珠”小区团购房相关说明

发布日期:2014-07-12    浏览次数:

    一、交房日期:2015年10月31日前

    二、团购价格:

    1.多层:

    一二跃,3200元/平方米,赠送花园面积70平方米,236平方米带独立地下室,地下室面积10万元每套,181平方米带独立地下室,地下室价格为8万元每套。

    三四五层,3000元/平方米。

    六层跃层,3200元/平方米,赠送阁楼,标准层面积65%以上。

    2.高层:

    2—7层,2900元/平方米。

    8—17层,2990元/平方米。

    18层,3180元/平方米,赠送阁楼,标准层面积65%以上。
    二、付款方式:

    分三期付款:
    1.团购客户确认团购面积后缴纳购房定金,180平米以下户型缴纳定金5万元,180平方米以上户型缴纳定金10万元。
    2.团购客户在7月27日前,向我公司支付本次全部购房款和地下车位款的40%(不含定金)作为购房诚意金。
    3.团购客户应在2014年10月30日前,向我们支付本次全部团购房款和地下车位款的60%(含定金)。需办理贷款的团购人,应在接到我方通知起7日内提供银行所需贷款材料,未按期提供贷款材料和不按期交足房款的,按照自动放弃购买团购房处理。
    4.房屋面积差的价款在我方交付团购人使用前,按照产权部门的测绘面积确定,多退少补。
    三、其他说明:
    1.如果延期交房,逾期不超过90日,我们按日向您支付已交房价款万分之一违约金,合同继续履行;逾期超过90日后,团购人有权解除协议。团购人解除协议的,我们可以自团购人解除协议通知到达之日起30日内退还全部已付款,并按照团购人已交付房款的银行同期活期存款利率向团购人支付违约金。团购人要求继续履行合同的,合同继续履行,我们将按照约定最后交房日期的第二日起,至实际交付日止,按照团购人支付已交房价款万分之1.2的违约金。
    2.在团购商品房交付团购人后365个工作日内,为您办理《房屋所有权证》;您应在签订正式《商品房买卖合同》同时,提供办理《房屋所有权证》所需各项资料,缴纳我们为您代办产权所需各项税费以及房屋维修基金;本次团购采取实名制,在签订正式《商品房买卖合同》之前,我们依据商品房团购领导小组书面通知,可以为您免费更名一次。


 

附件:

1.区域位置图

2.小区鸟瞰图

3.8#楼一层平面图

4.8#楼二层平面图

5.8#楼三至五层平面图

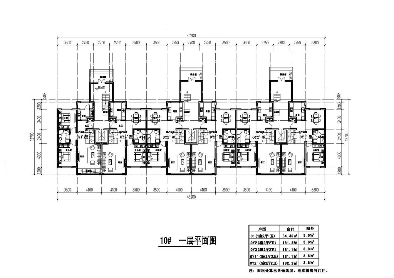
6.10#楼一层平面图

7.10#楼二层平面图

8.10#楼三至六层平面图

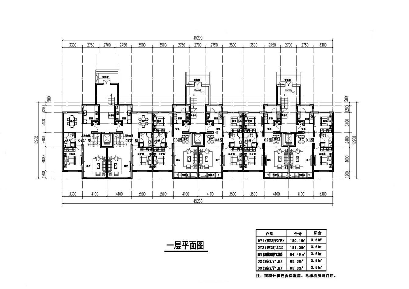
9.13#楼一层平面图

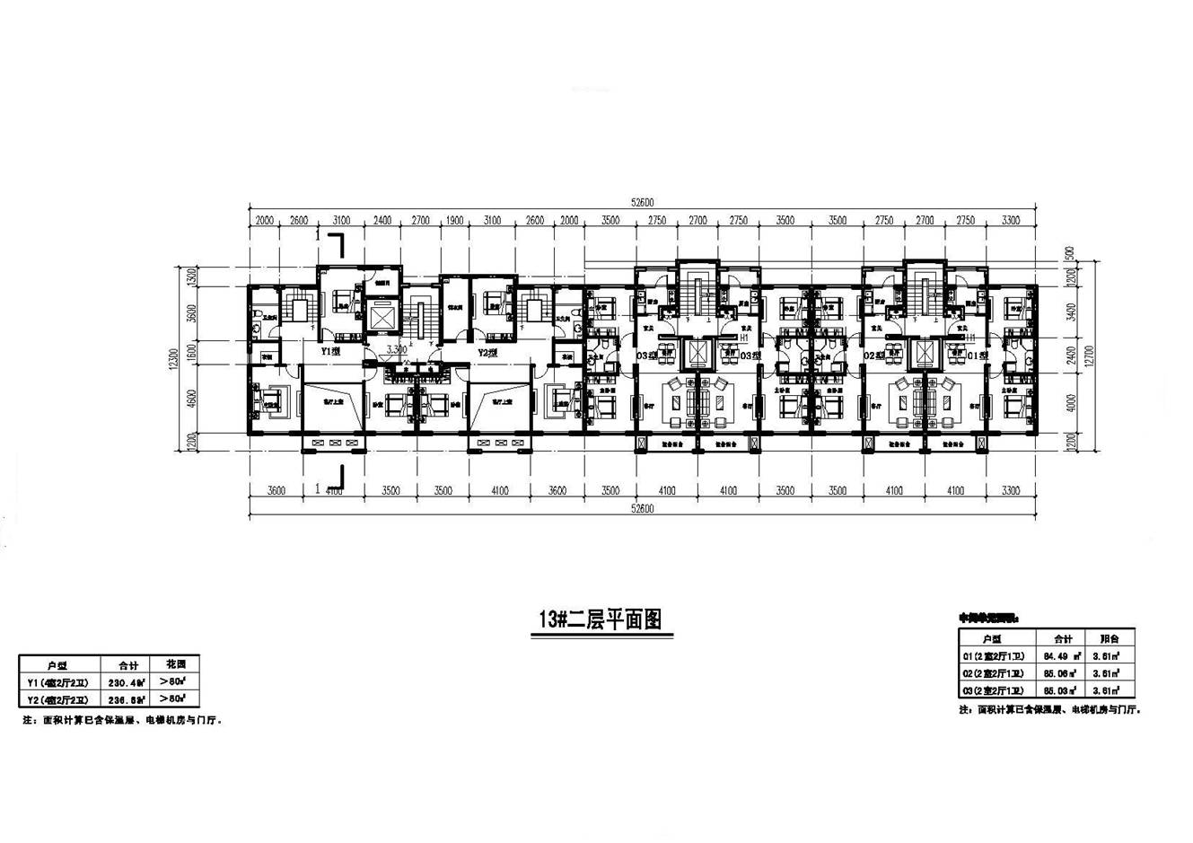
10.13#楼二层平面图

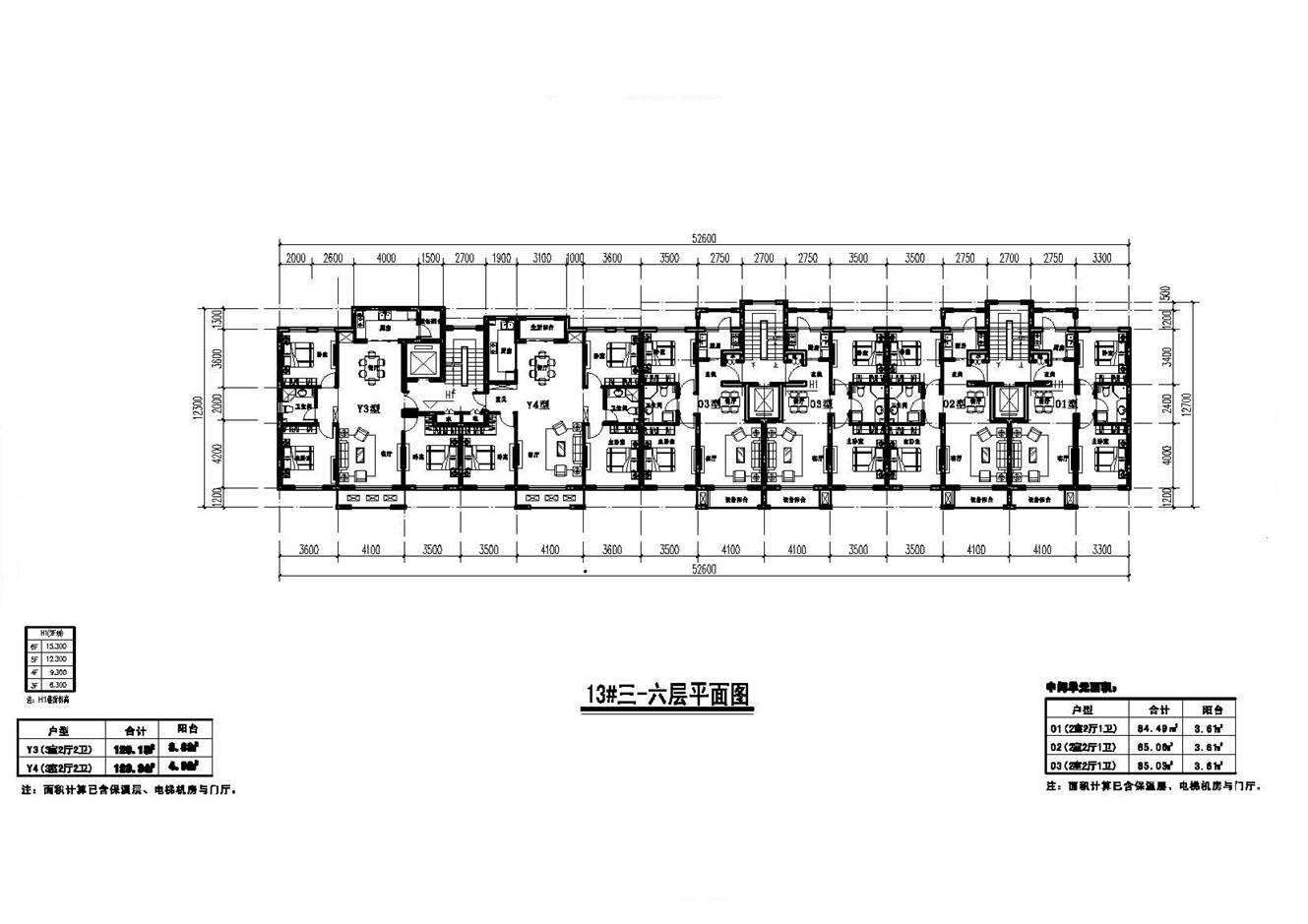
11.13#楼三至六层平面图

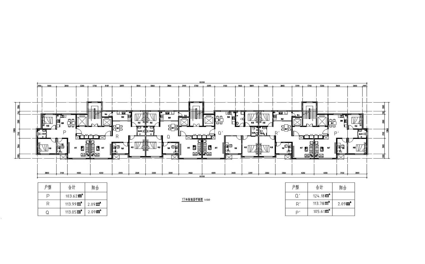
12.17#楼标准层平面图

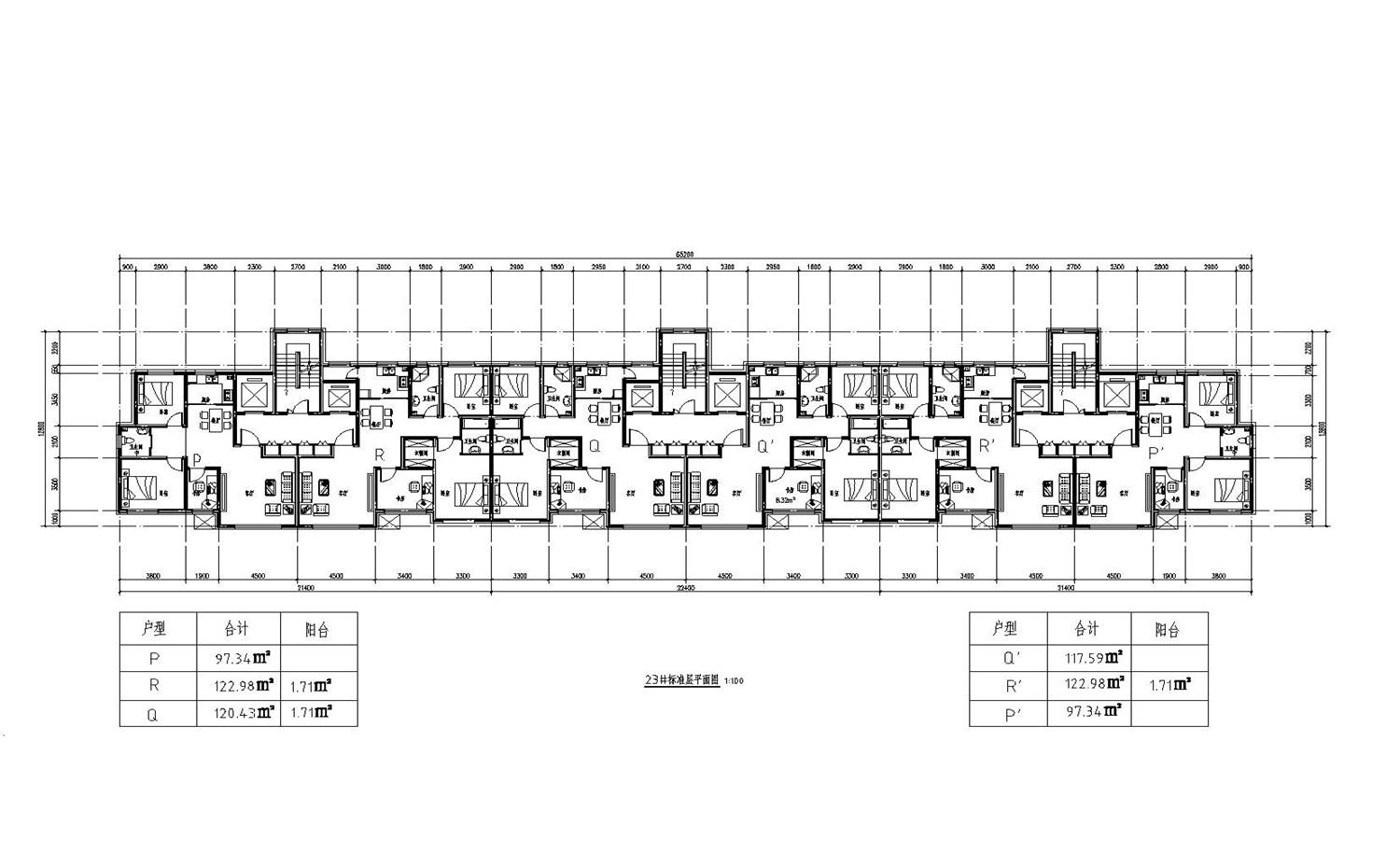
13.23#楼标准层平面图

14.团购报名表(已更新)

15.商品房团购协议书(人大)

16.关于团购东方明珠项目的情况说明

17.关于团购东方明珠项目的情况说明(细节)